Ecole primaire intercommunale de Malley - En association avec Tekhne SA

25d51-ruffieux-chehab-sa-ecole-de-malley-ext-250915.jpg
implantation.png
coupe-transversale.png
plan-rez-sup.png
plan-gym.png

Ecole primaire intercommunale de Malley - En association avec Tekhne SA

concours en procédure ouverte, 2025

Le plateau de Malley se distingue par sa relative planéité ayant favorisé, dès le début du XXe siècle, le développement d’activités industrielles. De ce riche passé demeurent aujourd’hui quelques vestiges d’un patrimoine bâti qui, jalonnant la friche, témoignent de son affectation d’alors et constituent autant de « curiosités ». En pleine réappropriation post-industrielle, le quartier vit aujourd’hui une mutation qui conduit à questionner son identité. Dans ce contexte, la nouvelle école apparait comme une nouvelle pièce urbaine au sein d’un plan de quartier formé d’îlots homogènes dont elle constitue, en quelque sorte, un nouveau pôle d’attraction.

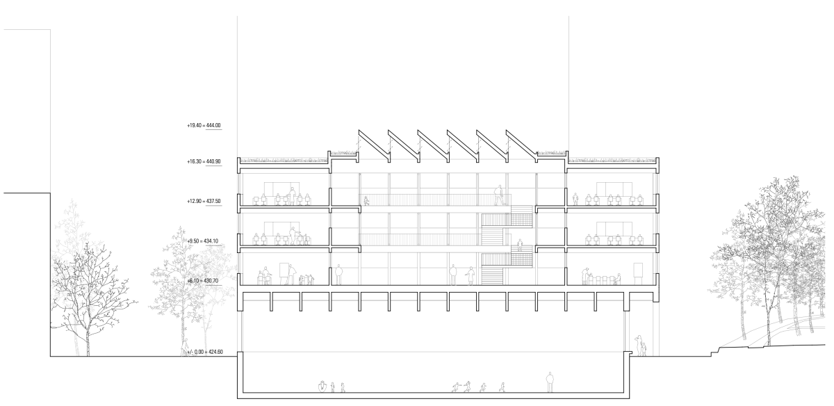
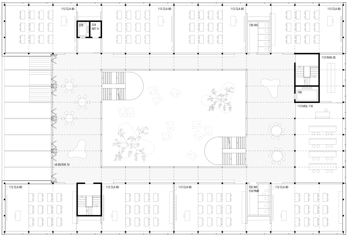
Clin d’œil aux écoles de « plein air » développées durant la première moitié du XXe siècle, le projet éponyme cherche à proposer des espaces diversifiés, ouverts au plus grand nombre, dont les plages d’utilisation s’attachent à s’étendre au-delà des stricts besoins scolaires. Situé en plein cœur du quartier, le site réservé à l’école bénéficie d’une position de choix, à la croisée des axes Nord-Sud et Est-Ouest structurant le site, face au parc.

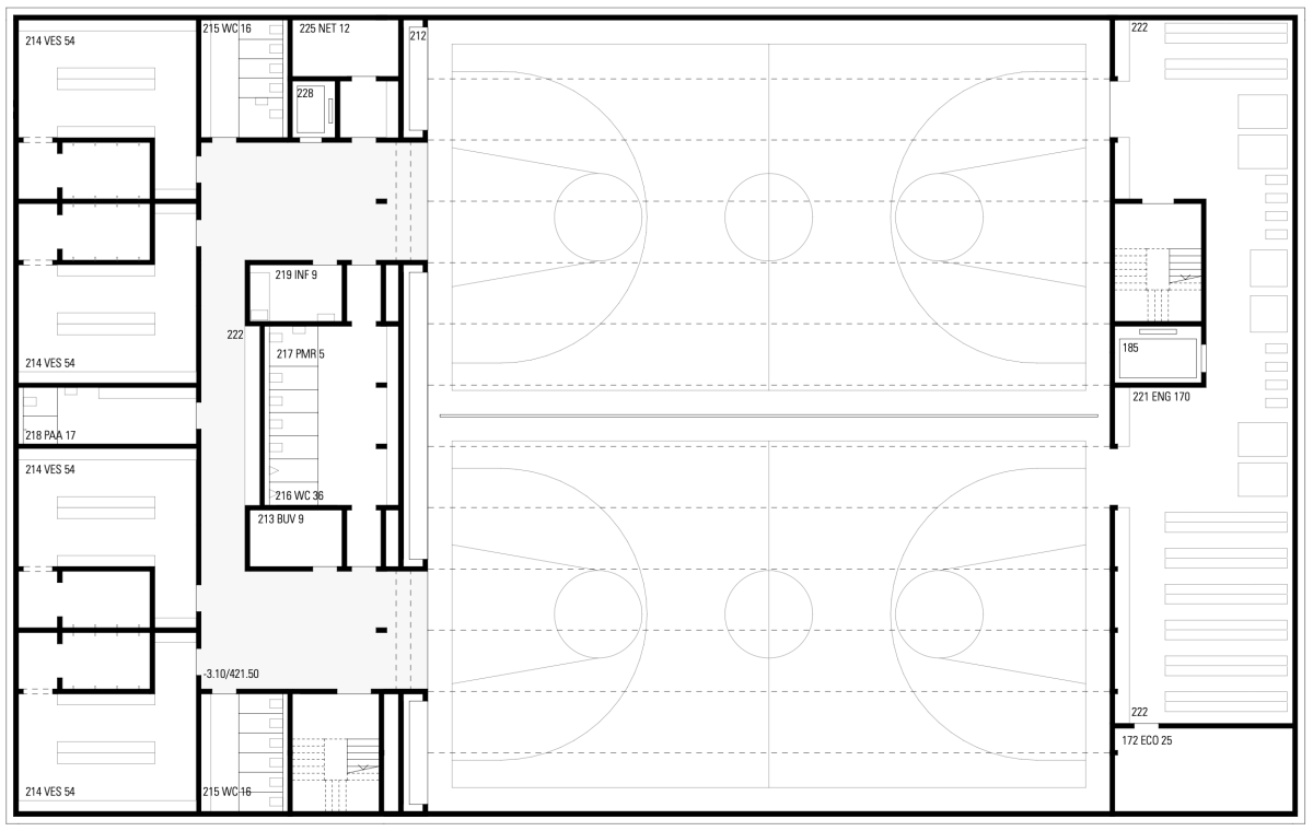
Disposée sur la toiture de la halle de sport, l'école est organisée autour d’un préau intérieur tempéré orienté sur le parc, pouvant accueillir différentes manifestations scolaires et extrascolaires. Les salles de classes et locaux annexes sont organisés en couronne, sur trois niveaux, autour de cet espace de référence. Dans l’espace central ainsi généré, éclairé par des sheds rappelant le passé industriel du lieu, une circulation verticale ludique est proposée, qui, par un jeu d’escaliers, de coursives et de paliers élargis, dessine des espaces ouverts propices à la pratique d’un enseignement décloisonné.